Bilocale in vendita

Grone, Via dei Fiori - San Fermo
€ 39.000
2 locali 2 locali
42 Mq 42 Mq
1 bagno 1 bagno

Bilocale in vendita

Grone, Via dei Fiori - San Fermo

Descrizione annuncio

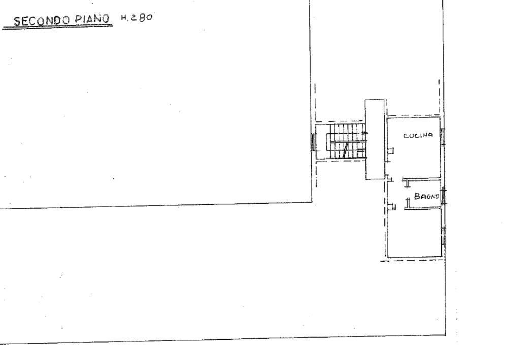
Nel suggestivo comune di Grone, situato nella rinomata località dei Colli di San Fermo, proponiamo in vendita un accogliente appartamento posto al piano secondo. L'immobile offre una zona giorno caratterizzata da un affascinante camino a legna, perfetto per creare un'atmosfera calda e accogliente. La vista panoramica dalle finestre regala scorci mozzafiato sui dintorni. La proprietà comprende una camera matrimoniale, un bagno con doccia e un ampio box auto, ideale per chi cerca comodità e praticità. Le poche spese condominiali e la presenza di un ampio parco condominiale rendono questa soluzione ideale per chi desidera una casa vacanza immersa nella tranquillità. Un'opportunità unica per chi cerca un rifugio lontano dal caos cittadino, senza rinunciare ai comfort essenziali.

Mostra tutto

Nelle vicinanze

Trasporto pubblico Trasporto pubblico
Trasporto pubblico
740 m
Luzzana - via Nazionale
Luzzana - via Nazionale
2,7 Km
Ricariche auto elettriche Ricariche auto elettriche
Comune di Casazza
2,7 Km
Scuole Scuole
Scuola Elementare
1,4 Km
Scuola Media Giovanni XXIII
1,5 Km
Istituto Comprensivo Borgo di Terzo
2,8 Km
Farmacia Farmacia
Farmacia
1,6 Km
Supermercati Supermercati
EuroSpin
870 m
Migros
2,5 Km
Supermercati
2,5 Km
Negozi Negozi
Santander
1,4 Km
La Boulangerie
2,2 Km
Alimentari Giusy e Nella
2,7 Km
Bar Bar
Bar
2,6 Km
Il posto giusto
2,6 Km
Minibar
2,7 Km
Ristoranti Ristoranti
Ristorante pizzeria da Ivan
600 m
Ristorante BBQ
840 m
Ristorante da Dodo
2,6 Km
Pizzeria d'asportono Dany
2,6 Km
Pizzeria La Noce
2,7 Km
Mostra tutto

Caratteristiche

Rif.:
61138606
Piano:
2 di 3 (Piano medio)
Box:
1
Posti auto:
1
Camere da letto:
1
Arredamento:
Completo
Mostra tutto
Prezzo Prezzo
€ 39.000
Rata mutuo Rata mutuo
€ 184 / mese
Spese annue Spese annue
€ 500
Proponi il tuo prezzoProponi il tuo prezzo

Classe Energetica

Questo immobile è esente da classe energetica
Anno di costruzione:
1982
Riscaldamento:
Autonomo
Tipo impianto:
Ad aria
Tipo alimentazione:
Metano

Ti interessa visionare l'immobile?

Fissa un appuntamento  Fissa un appuntamento

Richiedi informazioni

Clicca su Leggi per aprire l'informativa
* Questi campi sono obbligatori

Calcola il tuo mutuo

Semplice e senza impegno
Anticipo

( % )
Mutuo

( % )

pochi semplici passi

inserisci i tuoi dati
Questionario completato
Grazie per aver richiesto un appuntamento senza impegno con un nostro Consulente del Credito e Assicurativo.

Hai inserito correttamente tutti i dati necessari e a breve riceverai una e-mail con un link da convalidare per inviare i tuoi dati.
Affiliato
Immobiliare Trescore Srl
P.zza Cavour, 20 24069 Trescore Balneario (BG)

Il nostro staff


  • Daniele Lancini
    Affiliato

  • Jesus Massimo Bergamaschi
    Affiliato
P.zza Cavour, 20 24069 Trescore Balneario (BG)
Zona: Trescore Balneario-Cenate Sopra-Cenate Sotto
Mostra su mappa
Affiliato
Immobiliare Trescore Srl
P.zza Cavour, 20 24069 Trescore Balneario (BG)

2026 Tecnocasa Franchising S.p.A. - P. IVA 08365160152 - Via Monte Bianco 60/A 20089 Rozzano (MI). Ogni agenzia ha un proprio titolare ed è autonoma. Privacy policy | Policy utilizzo | Cookie policy